Image
PROJET CONCOURS
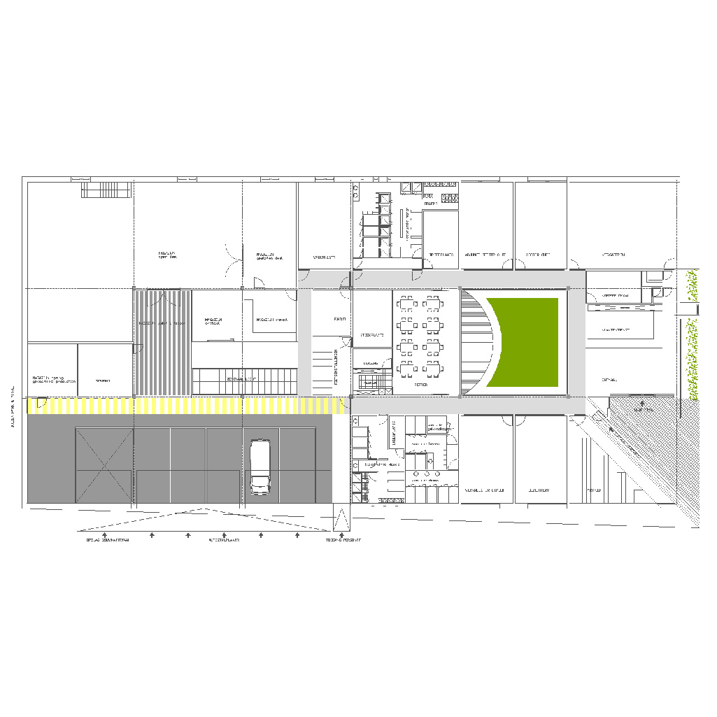
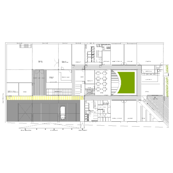
Construction d’ateliers, d’ entrepôts et de bureaux pour un centre de services sectoriels.
Construction d’ateliers, d’ entrepôts et de bureaux pour un centre de services sectoriels.
Construction d’ateliers, d’ entrepôts et de bureaux pour un centre de services sectoriels.