Afbeelding
WEDSTRIJD
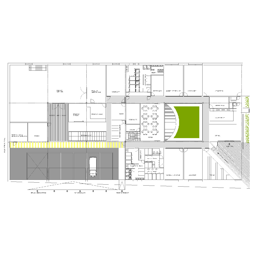
De bouw van ateliers, stapelplaatsen en kantoren voor een sectorieel dienstencentrum.
De bouw van ateliers, stapelplaatsen en kantoren voor een sectorieel dienstencentrum.
De bouw van ateliers, stapelplaatsen en kantoren voor een sectorieel dienstencentrum.